Parkviertel Kladow N111
Berlin-Kladow, 2023
Parkviertelallee 111-117, 14089 Berlin-Kladow
BPD Immobilienentwicklung GmbH
2019 – 2023
LPH 1–5
14.400 m² BGF
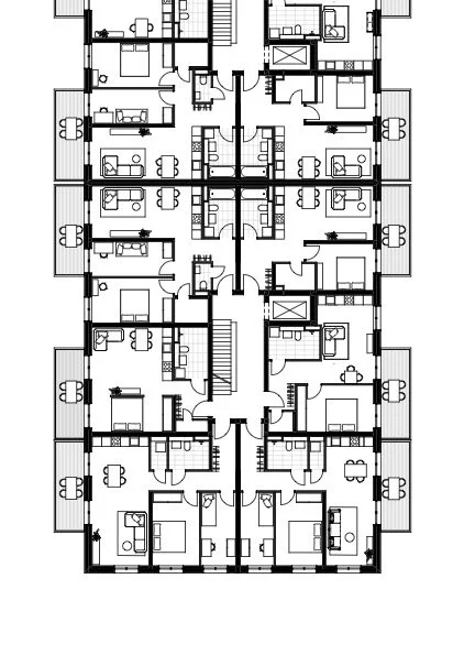
Auf dem 5.450 m² großen Grundstück der Parkviertelallee 111-117 in Berlin-Spandau wurde eine Wohnanlage mit 75 Eigentumswohnungen und einer Tiefgarage mit 54 PKW- Stellplätzen errichtet. Die Wohnanlage besteht aus drei Gebäuden mit je drei Vollgeschossen sowie einem als Staffelgeschoss ausgebildeten Dachgeschoss. Die drei Häuser sind unterirdisch über eine gemeinsame Tiefgarage verbunden. Hier befinden sich neben der Tiefgarage auch Fahrradabstellflächen, Technikräume sowie den Wohnungen zugeordneten Kellerräume.
